Inspirujte se našimi návrhy dřevostaveb z CLT panelů a vytvořte si ten svůj!
ARUNA
Plocha domu
116 m2
Terasy a/nebo balkony
82.3 m2
Podlaží
1
Aruna – prostor, který dýchá přírodou
Aruna je moderní přízemní dům z CLT panelů (křížem lepené dřevo), navržený pro milovníky otevřeného prostoru, přírodního světla a harmonického propojení s okolím. Vysoké stropy a velkorysé prosklení směrem do vnitřního dvora zajišťují dechberoucí 180stupňový výhled — jako by se příroda stala součástí vašeho interiéru.
Centrálním prvkem domu je prostorný obývací pokoj s jídelnou, kolem kterého se přirozeně soustředí další místnosti. Dispozice nabízí ideální rovnováhu mezi soukromím a propojeností prostoru.
Široké posuvné dveře plynule spojují vnitřní obytný prostor s krytou terasou. Dlouhé přesahy střechy, odkryté krokve a dřevěné detaily dodávají domu jedinečný charakter.
Hlavní přednosti:
CLT panely – ekologický a pevný stavební materiál
Vysoké stropy a vzdušný interiér
Panoramatická okna s výhledem do přírody
Kryté terasy u ložnice a pracovny
Výrazné architektonické detaily
Aruna je ideálním domem pro ty, kdo hledají klid, prostor a každodenní kontakt s přírodou — bez kompromisů v designu a komfortu.
Zajímá vás více? Rezervujte si nezávaznou konzultaci s odborníky Anarkada s.r.o zdarma a posuňte své bydlení na novou úroveň!
MODI
Plocha domu
170 m2
Terasy a/nebo balkony
25 m2
Podlaží
2
Projekt Modi — moderní pohled na kompaktní městské bydlení
Modi je elegantní a promyšlený řadový dům určený pro ty, kteří hledají funkčnost, estetiku a pohodlí v městském prostředí. Jeho střídmá architektura se přirozeně hodí jak do zavedené městské zástavby, tak do nově vznikajících čtvrtí.
Vizuální výraz domu je založen na harmonickém propojení klasických tvarů a moderních materiálových řešení. Jedinečný prvek tvoří jednotný střešní a fasádní materiál, který domu dodává výraznou a kompaktní podobu. Střešní okna Velux a svislé zasklení v koupelně a na schodišti přivádějí do interiéru dostatek denního světla a podtrhují osobitý charakter stavby.
Dispozice domu je praktická a dobře rozvržená:
v přízemí se nachází otevřený obývací pokoj s kuchyní, technické místnosti a univerzální pokoj vhodný pro hosty nebo domácí kancelář;
v patře je klidová zóna s ložnicemi a prostornou koupelnou.
Tento dům je ideální pro rodinu s 4–5 členy, přičemž každému poskytuje dostatek soukromí a prostoru.
Výhody projektu Modi:
- Moderní architektonický styl s originálním opláštěním
- Velké množství přirozeného světla díky promyšlenému prosklení
- Flexibilní dispozice s možností úprav
- Ideální pro městskou zástavbu
- Energeticky úsporné materiály a chytré technické řešení
Modi je dokonalým spojením kompaktnosti, komfortu a stylu pro moderní městský život.
Projekt lze realizovat jako CLT panelovou stavbu.
Každý návrh je flexibilní – půdorys i velikost plochy lze přizpůsobit vašim specifickým přáním.
AMMA
Plocha domu
141 m2
Podlahová plocha
154 m2
Podlaží
1
Projekt Amma — moderní interpretace tradičního dřevěného domu
Amma je moderní rodinný dům z CLT panelů, který spojuje současnou architekturu s přirozenou estetikou. Výrazná silueta s prudkou sedlovou střechou a čistými geometrickými liniemi dodává stavbě osobitost a nadčasovost. Terasa obklopená konstrukcí ve tvaru rámu rozšiřuje obytný prostor a umožňuje nerušený kontakt s okolní přírodou.
Fasáda domu kombinuje zemité červené tóny s tmavě šedým svislým obkladem — barevná kompozice je inspirována tradičními venkovskými stavbami, ale v moderním pojetí. Tato kombinace vytváří silný vizuální dojem a zároveň harmonicky zapadá do přírodního prostředí.
Srdcem domu je prostorný obývací pokoj s otevřenou kuchyní a přímým vstupem na terasu přes velké prosklené plochy. Otevřenost, světlo a funkční dispozice podporují klidné a pohodlné bydlení. V hlavní ložnici je k dispozici samostatná koupelna a šatna, které vytvářejí soukromou zónu.
Hlavní přednosti projektu Amma:
Výrazná architektura se sedlovou střechou
Design inspirovaný tradicí v moderním provedení
Otevřený obytný prostor propojený s terasou
Komfortní ložnice s vlastní koupelnou a šatnou
Harmonie s přírodním okolím
Amma není jen dům, je to prostor pro život v souladu s přírodou, estetikou a pohodlím.
Každý projekt lze přizpůsobit potřebám vaší rodiny, včetně dispozic a velikosti plochy.
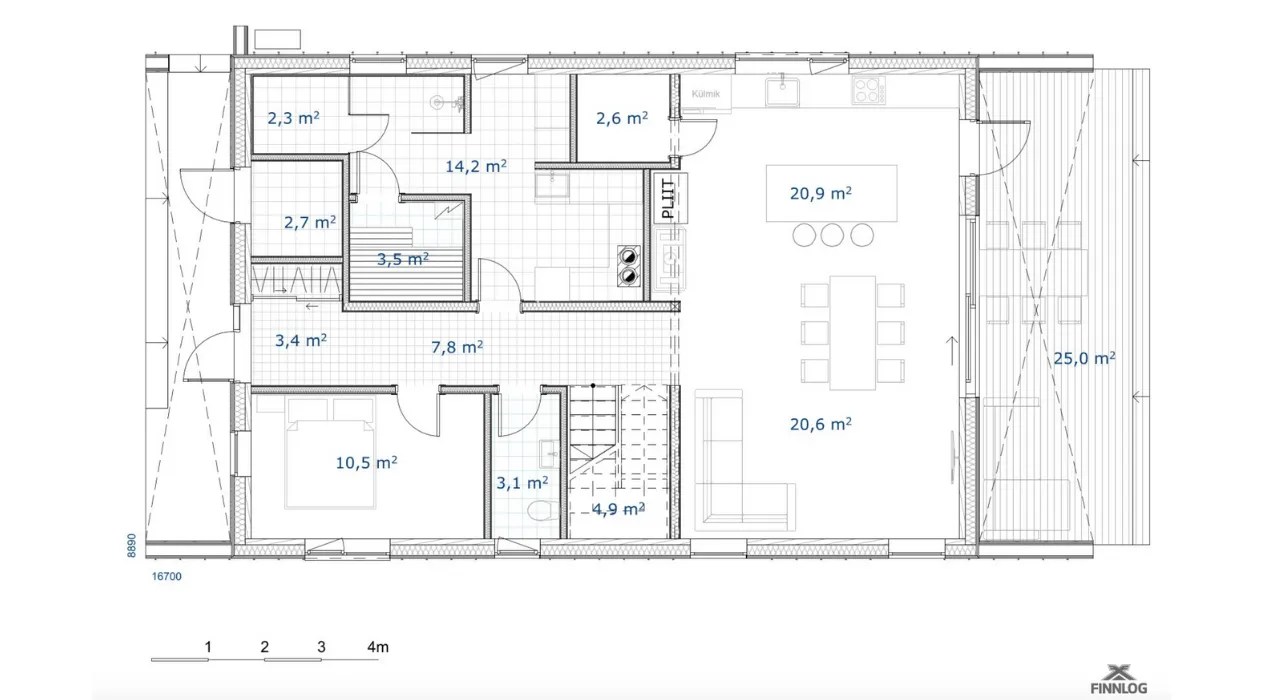
ILMA
Plocha domu
110 m2
Podlahová plocha
121.9 m2
Podlaží
1
Ilma – prostor, světlo a harmonie v každém metru
Moderní přízemní dům z CLT panelů, který spojuje skandinávskou jednoduchost, funkčnost a přirozené teplo dřeva. Výška stropu 2,9 metru dodává každé místnosti vzdušnost, lehkost a otevřený charakter.
Tento dům je ideální pro čtyřčlennou rodinu a nabízí promyšlené dispoziční řešení:
3 pohodlné ložnice, včetně samostatného křídla pro rodiče
2 plně vybavené koupelny, z nichž jedna obsahuje i saunu
Praktická technická a úklidová místnost
Prostorný obývací pokoj s kuchyní a panoramatickými okny, které propojují celý obytný prostor
Hlavní výhodou tohoto návrhu je logické rozdělení na klidovou a společenskou zónu, což zajišťuje soukromí i pohodlí pro všechny členy rodiny. Velká okna přinášejí do interiéru přirozené světlo a propojují dům s okolní přírodou.
Z vnitřní strany domu se nachází krytá terasa, která je ideálním místem pro odpočinek v jakémkoli ročním období. Chrání zároveň i před přímým sluncem a vytváří příjemný přechod mezi interiérem a exteriérem.
Ilma – dům, ve kterém se žije světle, volně a s klidnou myslí.
Každý projekt lze přizpůsobit potřebám vaší rodiny, včetně dispozic a velikosti plochy.
BELENUS
Plocha domu
100 m2
Podlahová plocha
117 m2
Podlaží
1
Projekt Belenus — světlo, jednoduchost a harmonie v každé linii
Belenus je moderní přízemní dům, který spojuje estetiku minimalismu, funkčnost a přirozené teplo dřeva. Díky vyváženým proporcím a působivé prosklené fasádě se přirozeně hodí jak do městského prostředí, tak i do malebné přírody.
Tento dům je navržen pro rodinu, která ocení pohodlí, otevřený prostor a propojení s okolní krajinou.
Dispozice zahrnuje vše potřebné pro moderní život:
3 útulné ložnice
prostorný obývací pokoj s kuchyní otevřený až do krovu
sauna, prádelna a technické místnosti
funkční chodby a vstupní hala s prostorem pro úložné systémy
Nejvýraznějším prvkem je panoramatické prosklení štítové stěny, které přivádí do interiéru dostatek denního světla a vizuálně propojuje vnitřek domu s přírodou.
Fasáda je obložena svislým dřevěným obkladem, který přináší moderní pojetí klasické dřevěnice a dodává domu osobitý charakter. Pro střechu doporučujeme tradiční profilovanou plechovou krytinu.
Proč si vybrat Belenus?
Ideální velikost pro rodinu střední velikosti
Kombinace moderní estetiky a přírodních materiálů
Světlo, prostor a pohodlí na každém metru čtverečním
Možnost přizpůsobení dispozice podle individuálních potřeb
Belenus – dům, kde architektura vytváří domov a inspiruje každý den.
Každý projekt je plně přizpůsobitelný – od změn v půdorysu až po velikost a technické detaily.
LUCIA
Plocha domu
88 m2
Podlahová plocha
117 m2
Podlaží
1
Lucia — jednoduchost tvarů, promyšlený prostor a světlo v každém koutě
Moderní přízemní vila s důmyslným půdorysem ve tvaru L a plochou střechou, která dokonale spojuje minimalismus, estetiku a funkčnost. Architektura domu zdůrazňuje čisté linie, prostornost a harmonické propojení s okolní přírodou.
Na první pohled zaujme promyšleným uspořádáním:
Pod jednou střechou se nachází přístřešek pro auto a dvě praktické sklady, které zajišťují čistý a přehledný prostor bez rušivých prvků.
Srdcem domu je prostorný obývací pokoj s jídelnou, zaplavený přirozeným světlem díky velkoformátovým oknům. Z něj je přímý vstup na částečně krytou terasu, která přirozeně rozšiřuje obytný prostor do zahrady.
Obývací část spojuje všechny klíčové zóny: pracovnu, útulnou ložnici a soukromou saunovou část, což vytváří pohodlnou a logickou dispozici.
Projekt Lucia je ideální volbou pro ty, kteří hledají komfort na jednom podlaží, intuitivní uspořádání a moderní pohled na bydlení v přírodě.
Lucia — dům, který žije v rytmu vašeho života.
Přizpůsobte projekt svému životnímu stylu
Tento dům lze realizovat jako stavbu z CLT panelů.
Každý projekt je plně přizpůsobitelný – od změn v půdorysu až po velikost a technické detaily.
Zaujal vás některý z těchto projektů? Jako specialisté na moderní dřevostavby realizujeme tyto i jakékoli jiné individuální projekty v celém Středočeském kraji. Naše hlavní působnost je především v lokalitách Praha, Kutná Hora, Kolín, Čáslav, Nymburk, Poděbrady a další.
Domy z CLT panelů, které vidíte v naší nabídce, jsou navrženy pro maximální komfort a energetickou úspornost. Ať už plánujete stavbu CLT domu v Praze nebo v klidnější oblasti v okolí Kutné Hory, zajistíme pro vás kompletní servis:
Odborné poradenství při výběru a technickém řešení.
Adaptace vybraného projektu přesně podle vašich potřeb a specifik pozemku.
Precizní montáž a stavbu na klíč.
Máte vlastní projektovou dokumentaci nebo specifickou představu o svém bydlení? Rádi s vámi probereme možnosti realizace a přizpůsobení projektu ve vaší lokalitě.
KONTAKTUJTE NÁS
ANARKADA s.r.o
Rádi vám co nejrychleji zodpovíme jakoukoli otázku, nebo se osobně zastavte.
Po–Pá 8:00–16:00
Kutná Hora
Mincířská 106/1
+420 608 374 610
info@anarkada.cz














































